Villa singola in vendita

Carlino, Via IV Novembre - San Gervasio
€ 365.000
6 locali 6 locali
402 Mq 402 Mq
2 bagni 2 bagni

Villa singola in vendita

Carlino, Via IV Novembre - San Gervasio

Descrizione annuncio

Tecnocasa, la più grande rete di intermediazione in Europa con 2.807 agenzie in Italia e 4.022 nel mondo, vi propone:

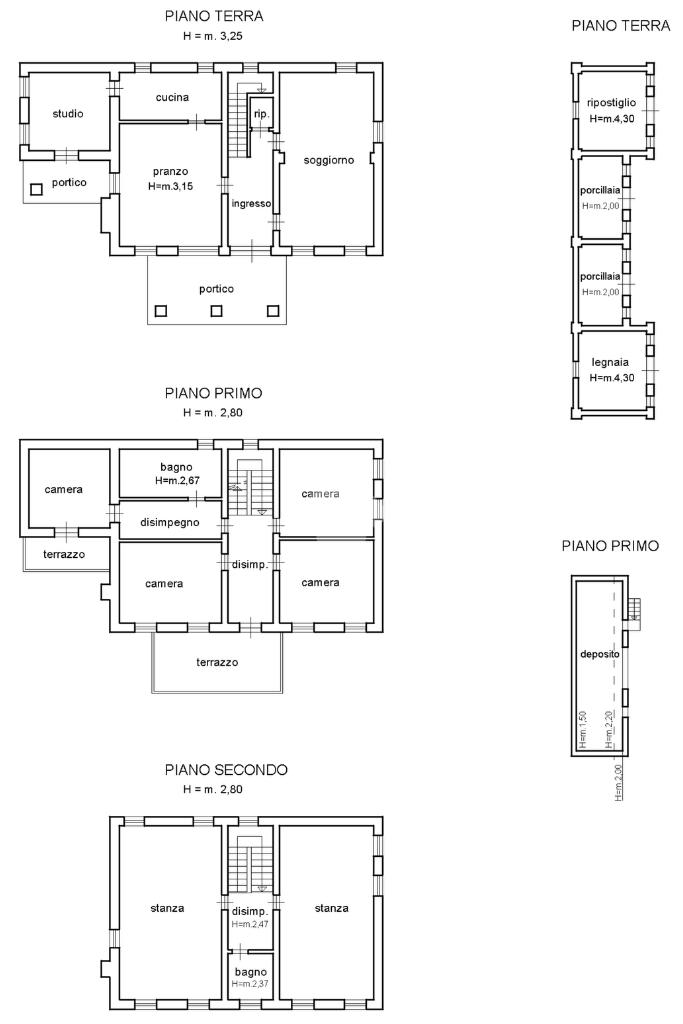
Nella tranquilla e riservata San Gervasio, piccola frazione tra Carlino e Muzzana, sorge un’imponente villa indipendente novecentesca caratterizzata da spazi generosi e dalle peculiari finiture dell’epoca. L’immobile, sviluppato su tre piani, è ideale per chi desidera una residenza prestigiosa immersa nella quiete.

Attraverso un affascinante portico colonnato si accede all’ingresso principale, illuminato da ampie porte vetrate. L’atrio introduce due importanti ambienti: a destra un ampio e accogliente soggiorno, di oltre 37 metri quadri, a sinistra una sala da pranzo, direttamente collegata a una cucina funzionale e completa. In fondo al corridoio di entrata, un ripostiglio è stato adibito a bagno al pian terreno, e una scala conduce alla zona notte. Completa il piano un riservato e silenzioso studio.

Salendo la scala, la zona notte si compone di quattro camere da letto, tutte matrimoniali, e un grande bagno finestrato con vasca idromassaggio. La camera padronale, la più grande, gode dell’affaccio sul terrazzo della residenza e con la vista sull’affascinante giardino da cui è circondata.

Al terzo piano, si trovano altre due grandi stanze di 37 metri quadri ciascuna, perfette come stanze hobby, palestra, area relax o spazi creativi, oltre a un ulteriore bagno finestrato con doccia.

L’immobile è dotato di impianto fotovoltaico da 6 kW installato sulla falda del tetto, volto al miglioramento dell’efficienza energetica, e di impianto di climatizzazione caldo/freddo.

Il lotto verrà frazionato, salvo diverse richieste degli acquirenti, assegnando alla villa un’area verde di circa 2.300 mq, completamente piantumata.

Sul retro del giardino è presente un ulteriore edificio accessorio composto da quattro vani, ideale come officina, taverna estiva grazie al forno a legna, oppure ampliabile per la realizzazione di ulteriori garage o locali di servizio.

L’immobile non rientra nella categoria degli immobili di lusso e, di conseguenza, non è soggetto alla relativa tassazione.

Prendi appuntamento per venire a visitarla!

Mostra tutto

Nelle vicinanze

Trasporto pubblico Trasporto pubblico
Trasporto pubblico
2,2 Km
Muzzana del Turgnano
Muzzana del Turgnano
2,7 Km
Scuole Scuole
Scuola Secondaria di Primo Grado Giosue' Carducci
2,0 Km
Scuola Primaria di Carlino
2,0 Km
Farmacia Farmacia
Lippi
2,2 Km
Farmacia Romano
2,8 Km
Supermercati Supermercati
Supermercato Serafini
2,5 Km
Negozi Negozi
Negozi
2,2 Km
Bar Bar
Bar
2,2 Km
Ristoranti Ristoranti
Ristoranti
1,8 Km
Agriturismo Al Picchio
2,0 Km
Trattoria Cà del Lago
2,1 Km
Mostra tutto

Caratteristiche

Rif.:
61145117
Piano:
3 di 3 (Piano su più livelli)
Box:
1
Terrazzi:
2
Camere da letto:
4
Arredamento:
Parziale
Mostra tutto
Prezzo Prezzo
€ 365.000
Rata mutuo Rata mutuo
€ 1.730 / mese
Spese annue Spese annue
€ 0
Proponi il tuo prezzoProponi il tuo prezzo

Classe Energetica

F
F
F
F
F
F
F
F
F
EP invernale del fabbricato:
EP estiva del fabbricato:
Anno di costruzione:
1900
Riscaldamento:
Autonomo
Tipo impianto:
A radiatori
Tipo alimentazione:
Metano

Ti interessa visionare l'immobile?

Fissa un appuntamento  Fissa un appuntamento

Richiedi informazioni

Clicca su Leggi per aprire l'informativa
* Questi campi sono obbligatori

Calcola il tuo mutuo

Semplice e senza impegno
Anticipo

( % )
Mutuo

( % )

pochi semplici passi

inserisci i tuoi dati
Questionario completato
Grazie per aver richiesto un appuntamento senza impegno con un nostro Consulente del Credito e Assicurativo.

Hai inserito correttamente tutti i dati necessari e a breve riceverai una e-mail con un link da convalidare per inviare i tuoi dati.
Affiliato
Sangiorgiodin Srl
Via Nazario Sauro, 1 33058 San Giorgio Di Nogaro (UD)

Il nostro staff


  • Aurora Bratta
    Coordinatrice

  • Patrick Fior
    Collaboratore

  • Tiziana Tremamunno
    Affiliata

  • Devid Zani
    Affiliato
Via Nazario Sauro, 1 33058 San Giorgio Di Nogaro (UD)
Zona: San Giorgio di Nogaro-Torviscosa-Carlino-Marano Lagunare-Muzzana-Pocenia-Palazzolo dello Stella
Mostra su mappa
Affiliato
Sangiorgiodin Srl
Via Nazario Sauro, 1 33058 San Giorgio Di Nogaro (UD)

2026 Tecnocasa Franchising S.p.A. - P. IVA 08365160152 - Via Monte Bianco 60/A 20089 Rozzano (MI). Ogni agenzia ha un proprio titolare ed è autonoma. Privacy policy | Policy utilizzo | Cookie policy